發新話題
打印

22/8 CQB團~吹水區

引用:
原帖由 seamoncheng 於 18-8-2010 23:06 發表

禾都可能會出去呀
咩時間? 今個星期六我好少時間, 唔知撞唔撞到你地呢~

[ 本帖最後由 faihk 於 18-8-2010 23:11 編輯 ]

TOP

我只有1330~1500左右時間

TOP

引用:
原帖由 Kuznetsov 於 18-8-2010 23:10 發表

衝??
撞...攪錯字...

TOP

我去唔到

TOP

決定啦! 22日gear:-

1. 大熊貓
2. usp match
3. 249
4. m4

TOP

引用:
原帖由 jackieyue 於 18-8-2010 23:34 發表

呢三枝啦
到時其實都想試試支m4性能係點, 帶多枝唔會重好多姐~

TOP

引用:
原帖由 Kuznetsov 於 18-8-2010 23:37 發表

矛錯
到時米輪得太過火呀! 我得一粒電炸!

TOP

引用:
原帖由 jackieyue 於 18-8-2010 23:38 發表

打99x搵佢囉!

TOP

引用:
原帖由 jackieyue 於 18-8-2010 23:39 發表

帶埋M99呀
米玩啦! 佢重過枝249囉!

TOP

引用:
原帖由 seamoncheng 於 18-8-2010 23:55 發表

你仲有249丫ma
到時可能點都用佢打一場, 重知唔好太過火啦!

TOP

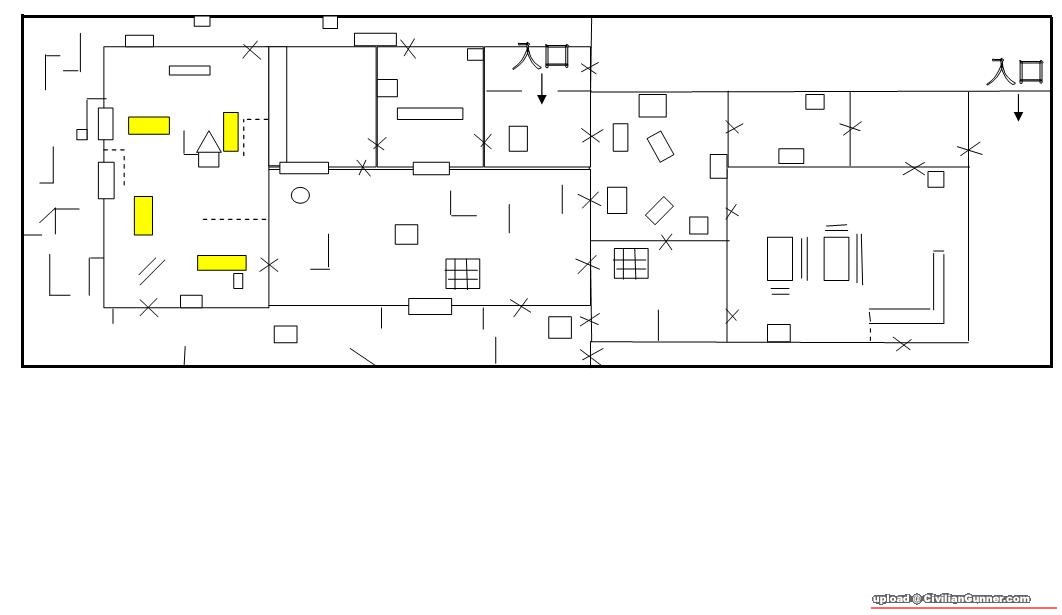
Floor Plan 收到啦~

附件

Floor Plan.JPG (58.69 KB)

19-8-2010 00:00

Floor Plan.JPG

TOP

引用:
原帖由 Kuznetsov 於 18-8-2010 23:59 發表

佢好多錯別字
SORRY囉! 我中英都唔好

TOP

大家諗吓到時要點打 & 點玩啦~

TOP

引用:
原帖由 jackieyue 於 19-8-2010 00:13 發表

確實價錢呢?
8月19日星期四10:00am post出黎

如果重有邊位師兄8月22日真係有事去唔到, 就8月19日星期四10:00am前pm我啦!

TOP

引用:
原帖由 seamoncheng 於 19-8-2010 00:24 發表

你知就講啦...要預錢架怪.老二
都話3k包場, 你自己都識計啦! 1舊水左右

TOP

發新話題